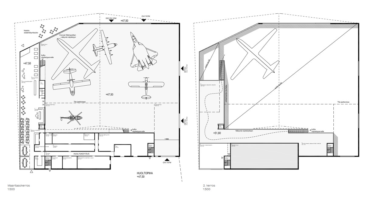
Uuden Ilmailumuseon näyttelytilat ovat kahdessa kerroksessa. Kuva: Arkkitehdit Davidsson Tarkela Oy.